Parcelforening Obstrupparken

Historie

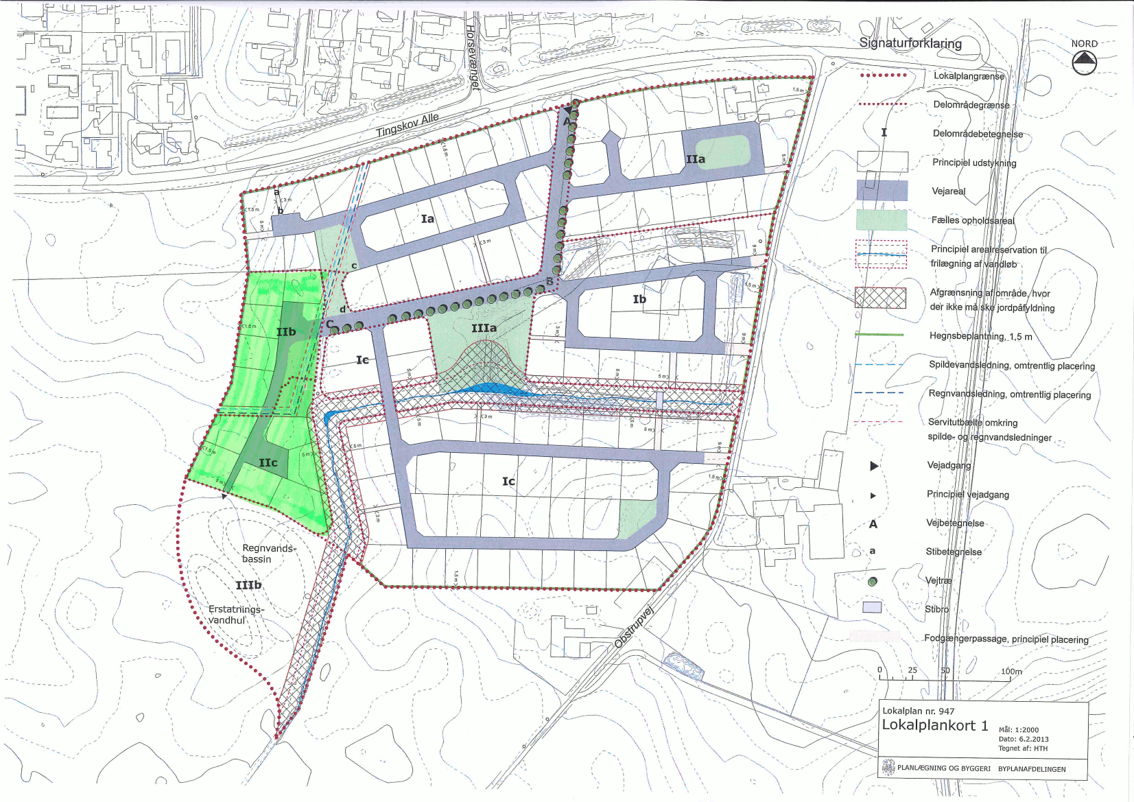
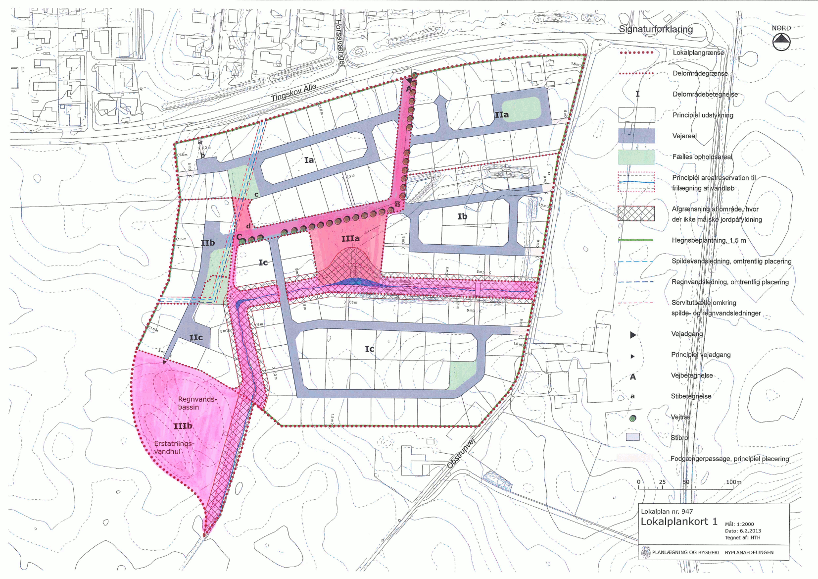
Parcelforening Obstrupparken blev stiftet i dec 2015. Tranbjerggård overdrog hermed jorden til byggefirmaet Brd. Thyboe som byggede 31 rækkehuse i to plan samt 2 etplanshuse. De sidste huse stod færdige sommeren 2016. Foreningen råder over flere små fællesarealer samt en stort grønt område. Nedenfor ses lokalplanen fra 2013 og kort herfra.